Refrigeración Rosales

Diseñamos, fabricamos e instalamos equipamiento profesional para hostelería y alimentación

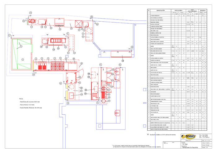
Proyecto de cocinas profesionales – Soluciones a Medida en Acero Inoxidable

En Refrigeración Rosales nos especializamos en la fabricación propia de maquinaria y mobiliario en acero inoxidable, adaptado a las necesidades reales de cada cliente. Cubrimos todo el proceso: desde el diseño inicial y la creación de planos hasta la producción final y la entrega personalizada.

¿Que diseñamos?

Mesas de trabajo a medida

Diseñamos mobiliario de acero inoxidable adaptados para tu cocina o espacio de
producción en diferentes acabados, grosores y tipos de acero o colores.

Campanas extractoras industriales

Diseñadas para cumplir normativa sanitaria y adaptadas al espacio disponible.

Muebles frigoríficos personalizados

Soluciones de frío integradas con el mobiliario del local.

Carros, estanterías y fregaderos industriales

Resistentes, funcionales y pensados para uso diario intensivo.

Encimeras, mostradores y líneas de servicio

Diseño ergonómico y duradero, ideal para restaurantes y obradores.

Todos los productos se fabrican en nuestras instalaciones con materiales de primera calidad y con la experiencia de décadas en el sector.

Desde el plano hasta tu negocio

Nuestro proceso de trabajo

  1. Estudio del espacio y necesidades

  2. Diseño técnico y validación de planos

  3. Fabricación e instalación final

Nuestro equipo técnico te asesora desde la fase de diseño. Creamos planos según tus necesidades, optimizamos el espacio y nos encargamos de la producción y la entrega. Así garantizamos resultados funcionales, estéticos y duraderos.

¿Por qué elegirnos?

Desde 1979 fabricamos soluciones profesionales en frío y acero inoxidable para hostelería, alimentación e industria. Nuestro conocimiento del sector nos permite ofrecer productos funcionales, duraderos y ajustados a cada negocio.

Solo utilizamos acero inoxidable y componentes que cumplen con las normativas sanitarias y de seguridad más exigentes. Garantizamos resistencia, higiene y durabilidad.

Cada proyecto se adapta a las necesidades concretas del cliente: desde las medidas hasta la funcionalidad. Creamos soluciones únicas que optimizan el espacio y el rendimiento.

Nos encargamos de todo el proceso: desde la creación de planos hasta la entrega final. Ahorras tiempo y evitas intermediarios, trabajando directamente con el fabricante.

Nuestro equipo técnico está siempre disponible para asesorarte antes, durante y después del proyecto. Cumplimos plazos y mantenemos una comunicación clara y cercana.

¿Necesitas una solución a medida para tu negocio?

Contacta con nosotros y uno de nuestros técnicos te ayudará a diseñar el mobiliario ideal para tu espacio.